3-【新築戸建て】世田谷区上野毛3丁目 【一般媒介】
東急大井町線「上野毛」駅北口徒歩12分・「等々力」駅南口徒歩19分・「二子玉川」駅徒歩19分
- 販売価格
- 9,680万円
物件概要
| 所在地 | 東京都世田谷区上野毛3-13-12 |
|---|---|
| 交通 | 東急大井町線「上野毛」駅北口徒歩12分・「等々力」駅南口徒歩19分・「二子玉川」駅徒歩19分 |
| 土地面積 | 72.25㎡・21.85坪 |
| 価格 | 9,680万円 |
| 地目 | 宅地 |
| 用途 | 第1種中高層住居専用地域 |
| 建ぺい率 | 60% |
| 容積率 | 200% |
| 取引態様 | 一般媒介 |
| 情報公開日 | 2025-10-28 |
| 情報更新日 | 2026-01-16 |
| 土地権利 | 所有権 |
| 物件の説明 |
都内限定 仲介手数料半額!! ※HPに記載ない物件もお手伝い致します。
担当:石井 までご連絡下さい。
電話番号:070-1509-1238
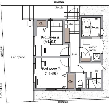
奥行きのある空間が魅力!!吹き抜けを配したLDKプラン 金額:9,680万円 所在地:東京都上野毛 交通:東急大井町線、田園都市線利用可 土地:72.25㎡・21.85坪 建物:87.44㎡・26.45坪 土地権利:所有権 地目:宅地 構造:木造/3階建て 設備:東京電力・公営上下水道 引渡し:相談 ※居空間を広く活用できる収納を備えた1面採光の6畳洋室 ※水回りを集約して家事洞泉が良いパントリーのあるキッチン ※TVモニター付きインターフォン ※床暖房システム ※洗浄便座 ※床下収納 ※23時間換気 ※人感センサー ※玄関収納 ※浄水器付きキッチン ※キッチン人工大理石 ※Loe-Eガラス使用 ※タッチキー ※食洗器付き |
お問い合わせ
- ディ不動産
- 0120-098-682

